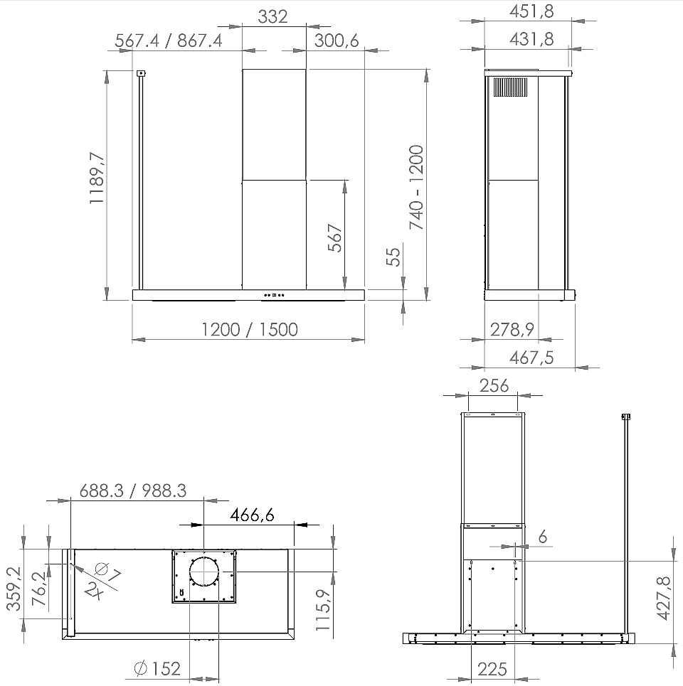
Hota decorative Metropolis OR Kashmir

https://nortberg.ro/hota-de-perete-metropolis-or-kashmir.html