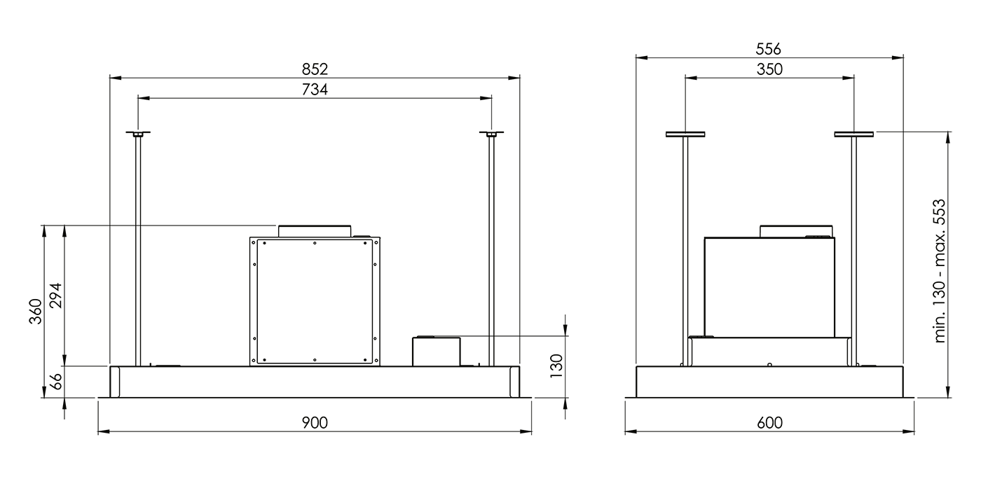
Hota De tavan Planet Black Matt

https://nortberg.ro/hota-de-tavan-planet-black-matt.html