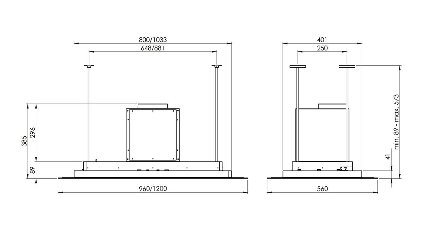
Hota De tavan Grand Black

https://nortberg.ro/hota-de-tavan-grand-black.html