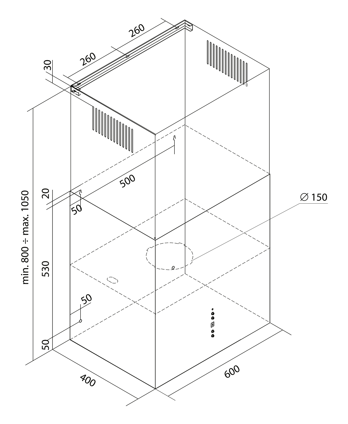
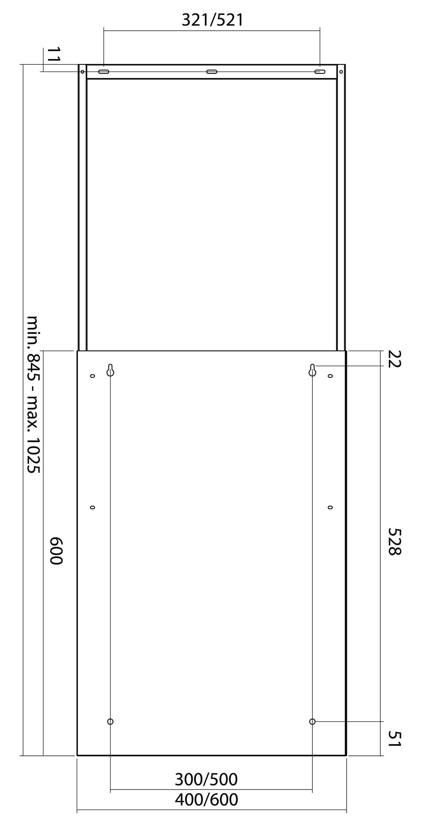
Hota decorative Quadro OR Max Black Matt

https://nortberg.ro/hota-de-perete-quadro-or-max-black-matt.html