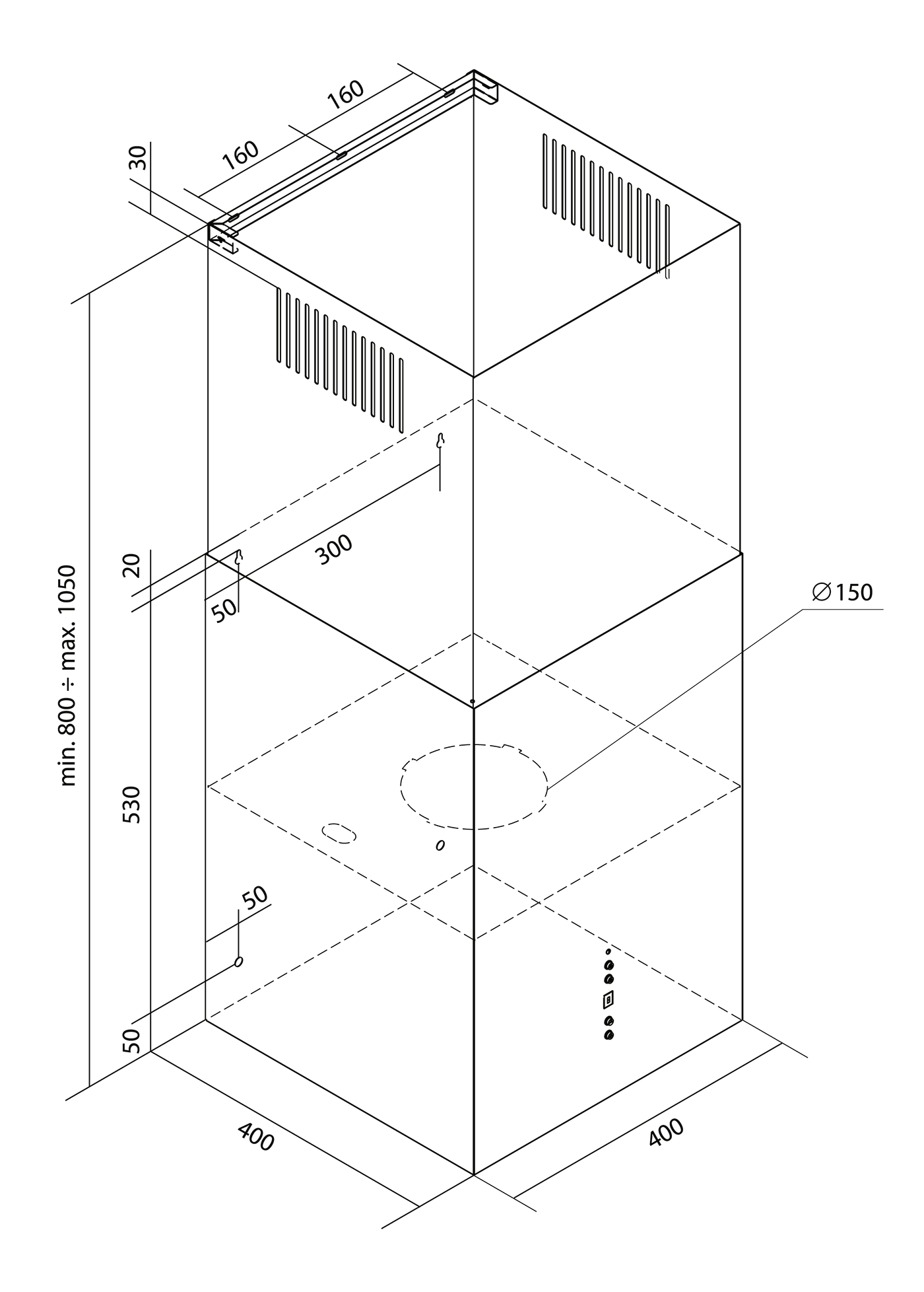
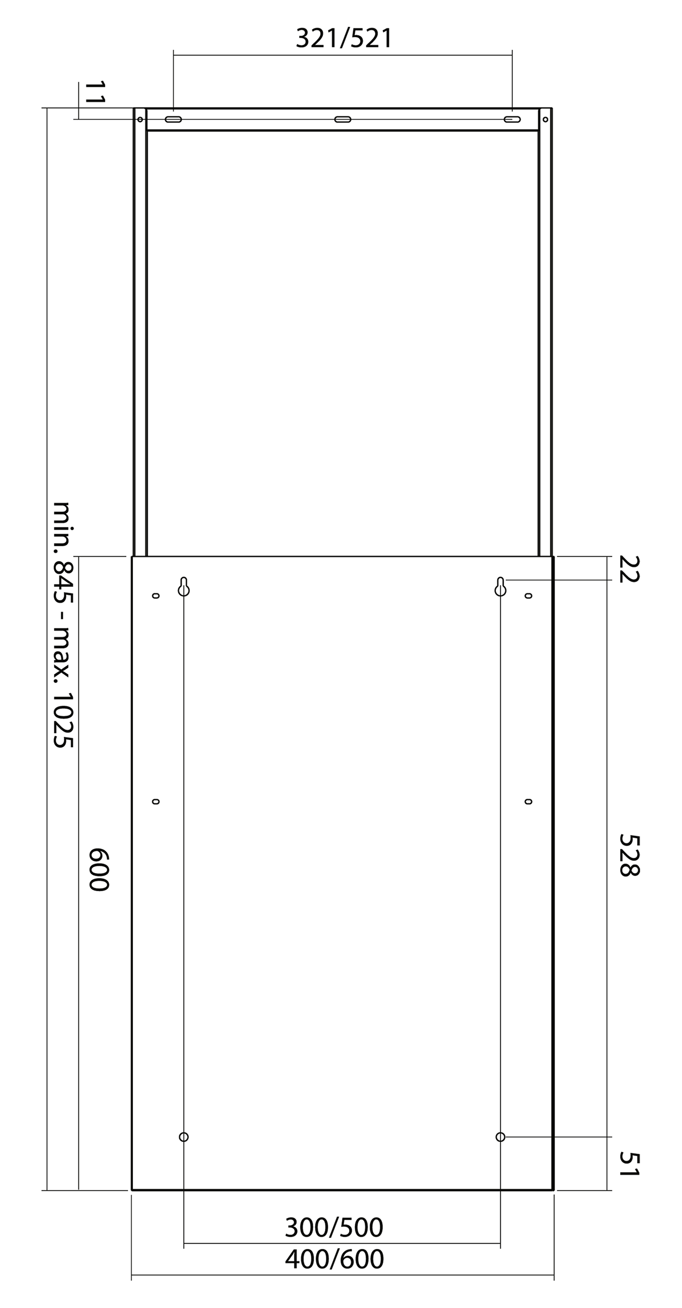
Hota decorative Quadro OR White

https://nortberg.ro/hota-de-perete-quadro-or-white-matt.html