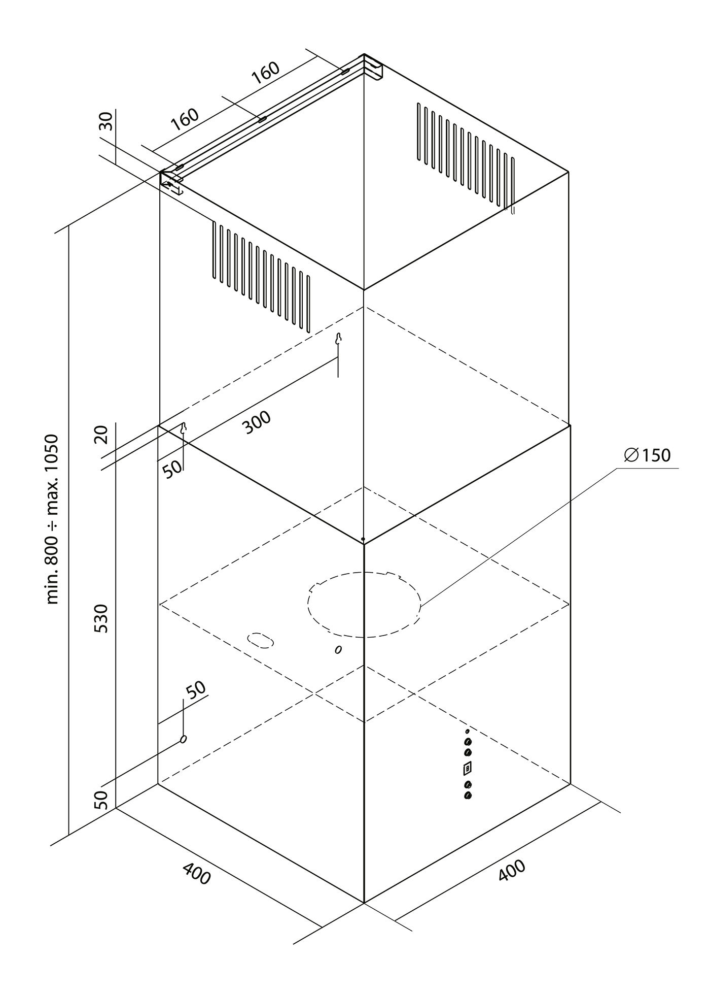
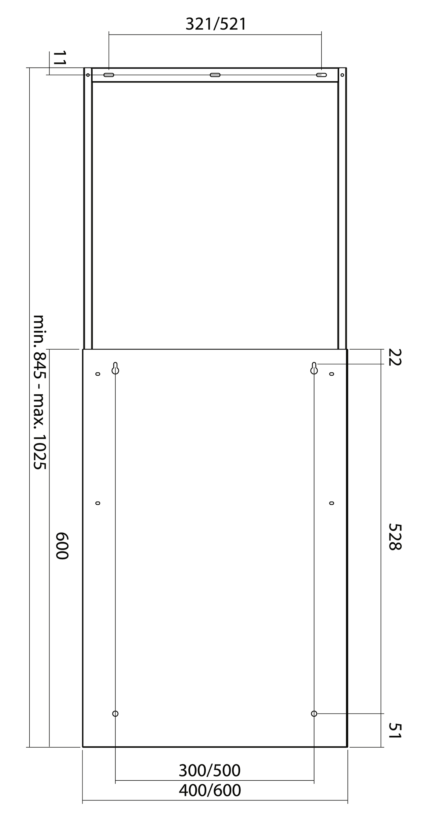
Hota decorative Quadro OR Black Matt

https://nortberg.ro/hota-de-perete-quadro-or-black-matt.html